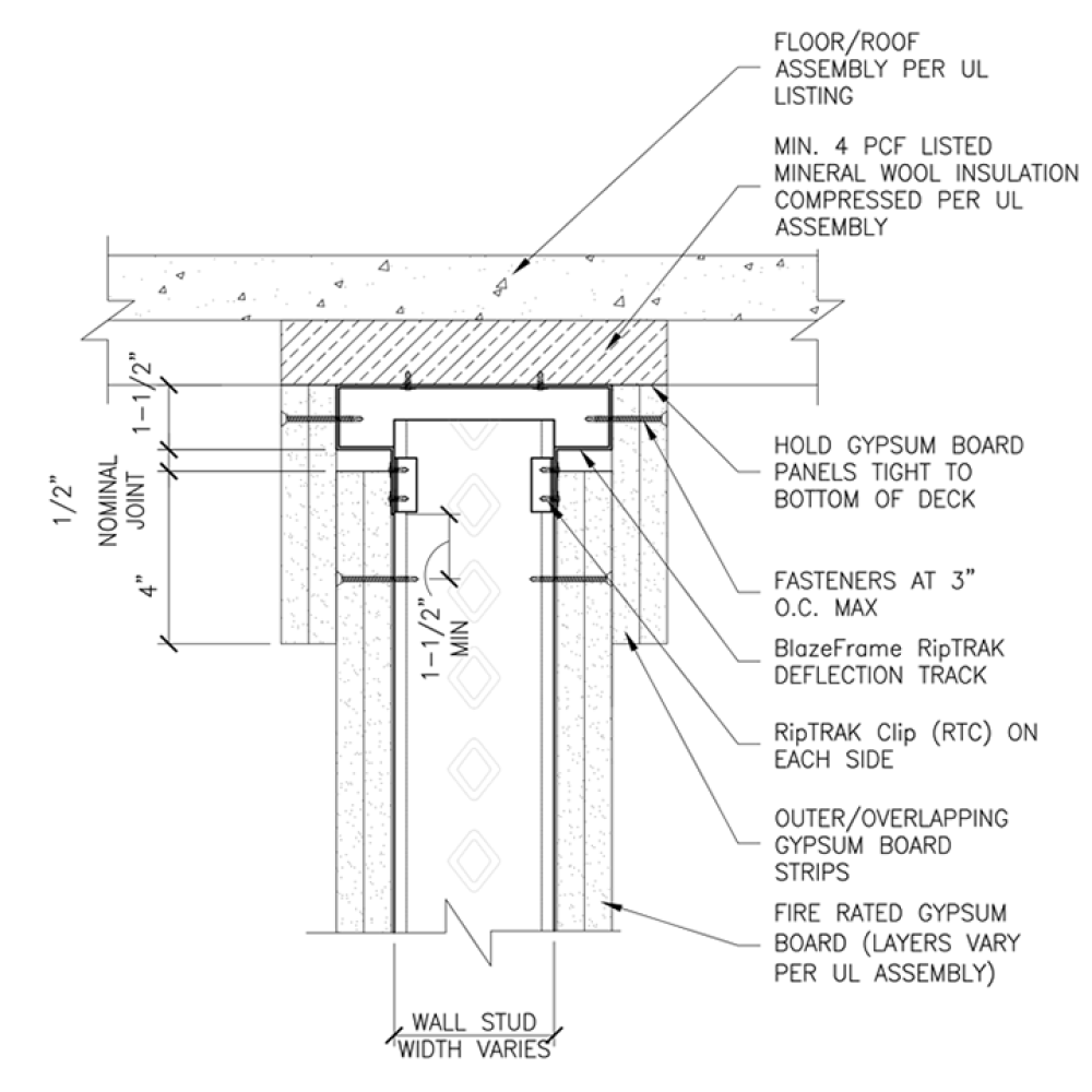
head-of-wall deflection track - 1 & 2 hour system
BlazeFrame RipTRAK is a deflection track with an offset shoulder that represents the thickness of the gypsum board (5/8" or 1-1/4”). A second piece of gypsum board (wall cladding strips) is fit flush to the underside of the slab (w/sealant) or to a fluted deck (without castle cuts & sealant), and is then fastened to the shoulder. This allows the roof/floor assembly and the BlazeFrame RipTRAK to move in relation to the wall assembly. This also allows the wall cladding strips (the rip board) that is attached to the BlazeFrame RipTRAK to slide over the primary wall assembly.
The BlazeFrame RipTRAK is the only UL tested fire-rated head of wall joint system that offers an alternate listing by eliminating castle cuts and sealant. Meets UL 2079, 5th edition; HW-D-1125 and HW-D-0823. For alternate details, please refer to configuration A, items 3A1 and 3B1. This is good for both roof and wall assemblies.
BlazeFrame RipTRAK is a deflection track with an offset shoulder that represents the thickness of the gypsum board (5/8" or 1-1/4”). A second piece of gypsum board (wall cladding strips) is fit flush to the underside of the slab (w/sealant) or to a fluted deck (without castle cuts & sealant), and is then fastened to the shoulder. This allows the roof/floor assembly and the BlazeFrame RipTRAK to move in relation to the wall assembly. This also allows the wall cladding strips (the rip board) that is attached to the BlazeFrame RipTRAK to slide over the primary wall assembly.
RipTRAK CLIPS (RTC)
If RipTRAK Clips (RTC) are required to meet allowable loads (in Technical Data Tab), they are attached to both inside bottom legs of the BlazeFrame RipTRAK with two #8 by 1/2" (13mm) long steel self-drilling framing screws and engage the short flange of the studs. This reinforces any stud to track connection while allowing deflection.
See the Technical Data and Installation Tabs for more info.
- RTC-33-RipTRAK Clip 20 ga (Drywall Studs) PN# 56542
- RTC-54-RipTRAK Clip 16 ga (Structural Studs) PN# 56543
Product Data & Ordering Information:
Material: Yield Strength: Grade 33ksi for 33mils & 43mils; Grade 50ksi for 54mils & 68mils
Coating: CP60 (CP90 available)
33mils: 20ga STR, 0.0346" Design Thickness, 0.0329" Min. Thickness
43mils: 18ga, 0.0451" Design Thickness, 0.0428" Min. Thickness
54mils: 16ga, 0.0566" Design Thickness, 0.0538" Min. Thickness
68mils: 14ga, 0.0713" Design Thickness, 0.0677" Min. Thickness
Inside depth: Equal to the outside width of the stud
Web sizes (W): 2-1/2", 3-5/8", 4", 6", 8"
Track length: 10'-0"
Load Tables
- For RipTRAK allowable load tables with or without RipTRAK Clips (RTC), use the below tables based on the Total Deflection required:
Need help with ordering the right profile?
- To order RipTRAK based on the system you need:
(Click here for an Ordering Form)
Is total deflection the same as deflection gap?
- Not at all. Yep, it can be confusing but we're here to help explain the differences.
- The image to the right helps explain why they are different:
View Product Submittal for more detailed info on deflection and profile sizes.
Review ClarkDietrich's UL Fill, Void or Cavity Materials Listings for construction / assembly information
-
Need help with making the best product selections for your Fire-Rated Project?
-
Submit info to our Technical Services Representatives to help answer your questions.
Installation
If RipTRAK Clips (RTC) are required to meet allowable loads (in Technical Data Tab), they are attached to both inside bottom legs of the BlazeFrame RipTRAK with two #8 by 1/2" (13mm) long steel self-drilling framing screws and engage the short flange of the studs. This reinforces any stud to track connection while allowing deflection.
- RTC-33-RipTRAK Clip 20 ga (Drywall Studs) PN# 56542
- RTC-54-RipTRAK Clip 16 ga (Structural Studs) PN# 56543
Review ClarkDietrich's UL Fill, Void or Cavity Materials Listings for construction / assembly information
Code Approvals & Performance Standards
- AISI S220-15 North American Standard for CFS Framing - Nonstructural Members
- (Compliant to ASTM C645 , but IBC replaced with AISI S220 in IBC 2015)
- Section A4 Material - Chemical & mechanical requirements (Referencing ASTM A1003/A1003M)
- Section A5 Corrosion Protection (Referencing ASTM A653/A653M)
- AISI S240-15 North American Standard for Cold-Formed Steel Structural Framing
- Section A3 Material - Chemical & mechanical requirements (Referencing ASTM A1003/A1003M)
- Section A4 Corrosion Protection (Referencing ASTM A653/A653M)
- UL Designs 2079 Fifth Edition Tests for Fire Resistance of Building Joint Systems
- UL File Number R26034-XHLI Full list of MaxTrak and RipTrak UL design assemblies
- SDS For ASTM A1003 Steel Framing Products For Interior Framing, Exterior Framing and Clips/Accessories
ordering Form
To order RipTRAK based on the system you need:
(Click here for an Ordering Form)
-
Need help with making the best product selections for your Fire-Rated Project?
-
Submit info to our Technical Services Representatives to help answer your questions.
- ClarkDietrich is a Member of the International Firestop Council (IFC)
PRoduct submittal SHeets
Click the below Product Code to view Submittal/Tech Datasheet.
| Product Code | Description |
|---|---|
| RipTRAK (1HR) for 4" Total Deflection | BlazeFrame® RipTRAK™ 1 HOUR SYSTEM |
| RipTRAK (1HR) for 3" Total Deflection | |
| RipTRAK (1HR) for 2" Total Deflection | |
| RipTRAK (1HR) for 1" Total Deflection |
| Product Code | Description |
|---|---|
| RipTRAK (2HR) for 4" Total Deflection | BlazeFrame® RipTRAK™ 2 HOUR SYSTEM |
| RipTRAK (2HR) for 3" Total Deflection | |
| RipTRAK (2HR) for 2" Total Deflection | |
| RipTRAK (2HR) for 1" Total Deflection |
ClarkDietrich SubmittalPro®
Submittal sheets for the exact product you're looking for can be created by using ClarkDietrich's SubmittalPro® Product Submittal System.
- Contact ClarkDietrich Technical Services at 888-437-3244 for any questions about creating product submittals or using SubmittalPro.